High Street, Shrewton
£450,000
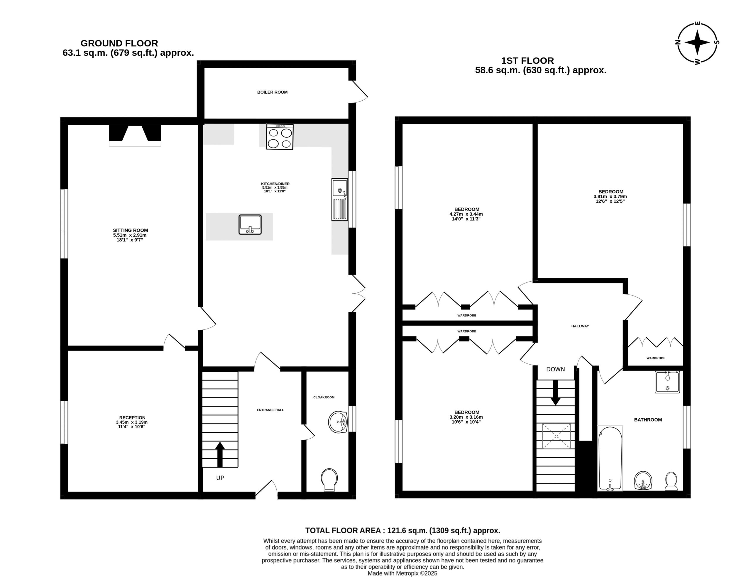
Property Summary
A substantial home, within the heart of the Village, close to amenities, providing a wonderful family space, with parking and garden. Sold with no onward chain.DESCRIPTION
Located in the heart of the Village, on the High Street, close to amenities, this detached, substantial house provides a wonderful family space creating a good balance between modern living whilst maintaining character features.
The well laid out accommodation includes a welcoming entrance hall, kitchen/dining room, large sitting room with fireplace, further reception room which could serve a number of different uses, downstairs WC, three double bedrooms and a family bathroom (which does require some attention).
Externally the property benefits from private, off-road driveway parking and good-sized garden to the rear.
OUTSIDE
The property is located on the Shrewton High Street, where you enter a private driveway, providing parking for approximately three vehicles, as well as easy access to the main entrance, and a side gate leading to the rear.
The Easterly facing rear garden can also be access via the double door in the kitchen diner, where you step out onto a patio, perfect for the garden furniture. The rest of the garden is mainly laid to lawn, with a mature apple tree providing shelter.
The garden is fully enclosed to all sides and a boiler cupboard is located on the north side of the property.
LOCATION
Shrewton is a popular, friendly village in the heart of Salisbury Plain, close to Stonehenge which allows free entry for Shrewton residents. The village has local amenities including a local butcher, doctors, convenience store, hairdresser, recreation ground and a pub.
The local town, Amesbury has further amenities including supermarkets, doctors, dentists, schools, a library, restaurants and plenty of local shops, including a butcher, bakeries and pubs. Local events include a weekly market, the Dogs Trust Show, Amesbury Carnival and Durrington Festival.
Situated to the south is the Cathedral city of Salisbury which provides a comprehensive choice of schooling, further shopping, restaurants, leisure facilities and a theatre. The city has a range of supermarkets as well as Park & Ride services into the city centre.
A303 (London/Exeter) 3m, Amesbury 7.5m, Salisbury 11m, Warminster 13m. Trains: Salisbury (London Waterloo 85 mins).
SERVICES
The property is connected to mains electricity, water and drainage. There is oil fired central heating, as well as a fireplace in the sitting room (subject to checking).
LOCAL AUTHORITY
Wiltshire Council Tax, Band D
TENURE
Freehold
VIEWINGS
Strictly by appointment, only with Boatwrights.
01747 859 359.
www.boatwrights.co.uk































